90 N Main St, Ashland, OR 97520
90 N Main St, Ashland, OR 97520
Prime retail space available in Downtown Ashland. Available Now
Hard-to-find retail space in the heart of downtown Ashland's coveted Plaza area — located at the high-visibility N. Main Block between Church Street and Granite Street. This 1,235 SF ground-floor space sits at one of the most active pedestrian and vehicular corners in Southern Oregon, surrounded by an established mix of successful retailers, galleries, and dining. Blocks from several hotels, Bed and Breakfasts, Lithia Park, Oregon Shakespeare Festival Theaters and so much more.
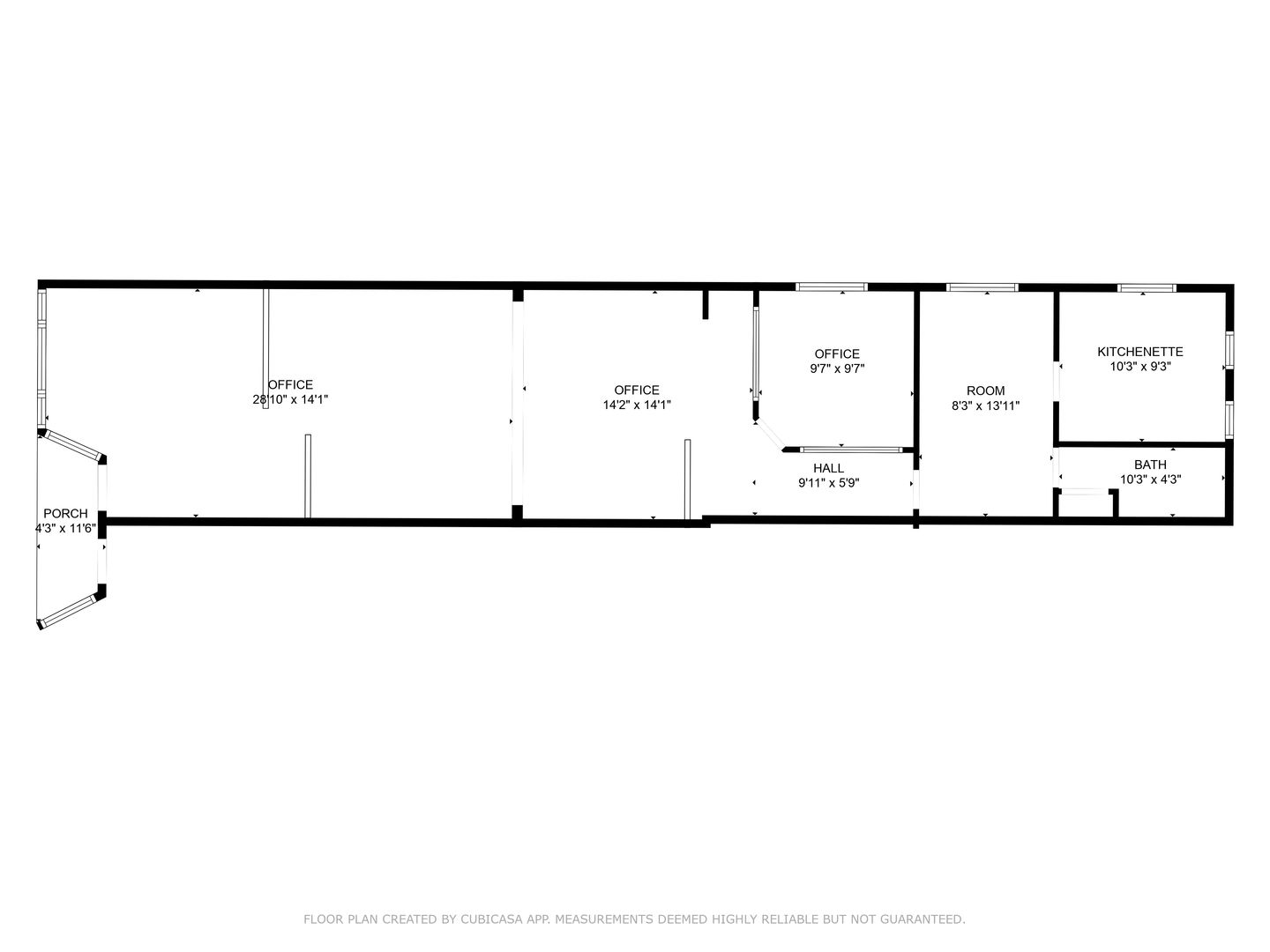
The layout features an open retail floor with excellent street exposure, conference room, kitchenette with lots of storage space, a generous back room ideal for inventory storage or a private office and a private restroom. Most commercial business types will be considered. Spaces like this rarely come available in the Plaza District.
Tenants to pay percentage of shared utilities, taxes, insurance and maintenance. Average monthly NNN charges are $443.00/mth.
Please contact Josh at Ashland Property Management LLC for more information or to schedule a showing.
Appointments only please.
The layout features an open retail floor with excellent street exposure, conference room, kitchenette with lots of storage space, a generous back room ideal for inventory storage or a private office and a private restroom. Most commercial business types will be considered. Spaces like this rarely come available in the Plaza District.
Tenants to pay percentage of shared utilities, taxes, insurance and maintenance. Average monthly NNN charges are $443.00/mth.
Please contact Josh at Ashland Property Management LLC for more information or to schedule a showing.
Appointments only please.
Contact us:
















